Portfolio

Multi Dar 3MM.1 Multi Andalusia + Fransa

Short Overview

Modular and panelized buildings are often considered safer and better-built than traditional construction. Modular construction is becoming more popular, and one of its major benefits is the reduction of time on the construction site.

If you prefer to invest big it is possible to book us to build an apartment-building or office. The internal as the external lay-out can be customized as you fit.

For this example we combined:
54 modules of our existing Dar 3M1.2 Andalusia with Ref.Nr. DL001001 and 12 modules of our existing Dar 2M1.2 Fransa with Ref.Nr. DL001007. With sufficient green outdoor living space!

Did you know, that we deliver all units with European quality and standards? Like all other units in our Portfolio and it is perfectly doable to expand your units as for example when your family grows as children will exceed or when you feel like taking care of your parent(s) who get older and need help but still some privacy is required.

Pricing are including local taxes and standard foundations. It does not include, site services, transport and permits. 

3 Floor(s)

1980 m2

64 Bedroom(s)

24 Bath(s)

Features Overview

Ref.Nr. DL001002

  • Yard
  • Patio
  • Heating
  • Air Condition
  • Balcony
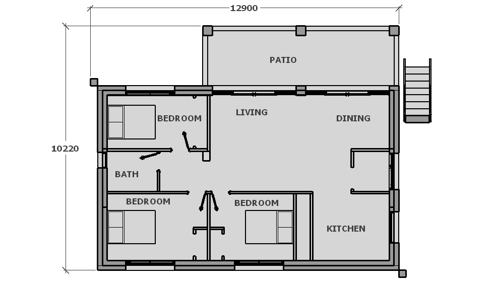
Explore Floor Plan

1 Living, 1 Dining, 1 Kitchen, 3 Bedrooms, 1 Bath
1 Living, 1 Dining, 1 Kitchen, 3 Bedrooms, 1 Bath
1 Living, 1 Dining, 1 Kitchen, 3 Bedrooms, 1 Bath

Address

Av. Ali Bnou Taleb El Kararete
N 30 Bloc C - 92000
Larache - Maroc

Contact Info

EmailThis email address is being protected from spambots. You need JavaScript enabled to view it.

Phone: +212 539 91 27 22